DIENSTEN

VERKOOPPLATTEGROND

Home / Diensten verkoopplattegronden
DesignGenie - Studio bouwkundig teken -en advies bureau
DesignGenie-Studio ©2025
CONTACT Wilt u meer weten over DesignGenie - Studio of wilt u een afspraak maken om te kijken wat we voor u kunnen betekenen? U kunt hier het formulier invullen en wij nemen binnen 48 uur contact met u op!
Gemshoorn 20 3766 EL, SOEST Utrecht, NL Bezoek alleen op afspraak
kvk nr. 82104204
DesignGenie-Studio ©2025
+31 (0)6 3606 95 48 info@designgeniestudio.nl

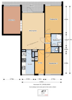
Maak je verkoop nog aantrekkelijker!

Funda plattegronden (verkoopplattegronden) geven potentiele kopers of huurders van uw woning/pand een goed beeld van de aanwezige ruimtes. Tevens is het altijd fijner voor huiszoekenden om ook de plattegronden te kunnen bekijken van een woning die te koop of te huur staat. Ook maakt u met een plattegrond uw objectpresentatie compleet! Om natuurlijk een plattegrond te kunnen maken moet er eerst worden ingemeten. Dit doen wij conform NEN 2580. Bent u een zakelijke klant? Ook u kunt bij ons zeker goed terecht! Benieuwd naar de mogelijkheden voor u als zakelijke klant? Neem dan contact met ons op.
DesignGenie - Studio bouwkundig teken -en advies bureau
DesignGenie-Studio ©2025
CONTACT Wilt u meer weten over DesignGenie - Studio of wilt u een afspraak maken om te kijken wat we voor u kunnen betekenen? U kunt hier het formulier invullen en wij nemen binnen 48 uur contact met u op!
Gemshoorn 20 3766 EL, SOEST Utrecht, NL Bezoek alleen op afspraak
kvk nr. 82104204
DesignGenie-Studio ©2025 Alle rechten voorbehouden
+31 (0)6 3606 95 48 info@designgeniestudio.nl

DIENSTEN

VERKOOPPLATTEGROND

Home / Diensten verkoopplattegrond
Maak je verkoop nog aantrekkelijker! Funda plattegronden (verkoopplattegronden) geven potentiele kopers of huurders van uw woning/pand een goed beeld van de aanwezige ruimtes. Tevens is het altijd fijner voor huiszoekenden om ook de plattegronden te kunnen bekijken van een woning die te koop of te huur staat. Ook maakt u met een plattegrond uw objectpresentatie compleet! Om natuurlijk een plattegrond te kunnen maken moet er eerst worden ingemeten. Dit doen wij conform NEN 2580. Bent u een zakelijke klant? Ook u kunt bij ons zeker goed terecht! Benieuwd naar de mogelijkheden voor u als zakelijke klant? Neem dan contact met ons op.